Mieszkanie na sprzedaż Zabrze, Sztygarów

2 pokoje
44.60 m²
6 390,13 zł/m2
wysoki parter piętro
RYL-MS-9231

285 000 zł

Mieszkanie na sprzedaż
Nowa oferta

Szczegóły oferty

Symbol oferty RYL-MS-9231
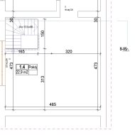
Powierzchnia 44,60 m²
Powierzchnia użytkowa [m2] 44,60 m²
Liczba pokoi 2
Rodzaj budynku kamienica
Standard
Opłaty w czynszu administracja
Piętro wysoki parter
Liczba pięter w budynku 3
Stan lokalu Do wprowadzenia
Mies. czynsz admin. 310 PLN
Okna PCV
Instalacje nowe
Balkon brak
piwnica tak
Pomieszczenia
Rodzaj kuchni oddzielna

Opis nieruchomości

Polecamy Państwu do zakupu mieszkanie 2 - pokojowe o pow. 43,40m2.

Zabrze Mikulczyce ul.Sztygarów 

Mieszkanie usytuowane w cichej , zielonej okolicy.

Do mieszkania przynależy duży ogród o pow. ok.200m2!!!

Obecnie mieszkanie składa się z dwóch pokoi , kuchni, łazienki oraz przedpokoju :

salon: 23m2, pokój mniejszy: 7,2m2, kuchnia 5,6m2, przedpokój 2,4m2, łazienka 5,3m2

UWAGA!!! - możliwość stworzenia trzeciego pokoju - gabinetu, siłowni , sypialni itp. Bezpośrednio pod salonem znajduje się piwnica o powierzchni 23m2 która można przekształcić na pomieszczenie mieszkalne. Został sporządzony projekt przez architekta i część prac przygotowawczych w piwnicy została wykonana. Dla osób chcących powiększyć powierzchnię mieszkalną to idealne rozwiązanie, w zakładce zdjęcia dołączona wizualizację takiego rozwiązania .

Ogrzewanie w mieszkaniu - elektryczne - podłogowe. 

Niski czynsz 310 zł + zaliczka na wodę i opłata za wywóz śmieci. 

Generalny remont w mieszkaniu wykonany został 10 lat temu . Mieszkanie gotowe do mieszkania , bez konieczności przeprowadzania remontów. 

Kamienica bardzo zadbana i wyremontowana!!

Zapraszamy do oglądania !!!!

Lokalizacja nieruchomości

Kalkulatory

Kalkulator kosztów

Podatek od czynności cywilno-prawnych

Taksa notarialna
(opłata notarialna)

Wniosek o wpis do KW

VAT od prowizji
agencji nieruchomości

VAT od taksy notarialnej
(opłaty notarialnej)

Prowizja agencji nieruchomości

Wypisy aktu notarialnego

Razem

Uwaga: mogą wystąpić dodatkowe opłaty za założenie księgi wieczystej oraz ustanowienie hipoteki.

PLN
PLN
PLN
PLN
PLN
PLN
%
PLN

Podobne oferty

Mieszkanie na sprzedaż

Zabrze, Centrum

3 pokoje 90 m2 3 439,48 zł/m2
Nowa oferta

Mieszkanie na sprzedaż

Zabrze, Śródmieście

3 pokoje 54 m2 5 504,76 zł/m2
Nowa oferta
Nowa oferta

Mieszkanie na sprzedaż

Zabrze, Centrum

3 pokoje 67 m2 5 074,63 zł/m2
Nowa oferta
Oferta specjalna

Mieszkanie na sprzedaż

Zabrze, Centrum

2 pokoje 53 m2 6 571,43 zł/m2
Oferta specjalna

Właściciel

Proszę wprowadzić poprawne imię i nazwisko
Proszę wprowadzić poprawny numer telefonu
Proszę wprowadzić poprawny adres e-mail
Proszę zaznaczyć wymagane zgody
Rozwiąż równanie:
11 2
Niepoprawny wynik