Dom na sprzedaż Sośnicowice (gw), Kozłów, Łabędzka

4 pokoje
120.61 m²
7 600,00 zł/m2
RYL-DS-9220
Oblicz ratę kredytu

916 636 zł

Dom na sprzedaż
Bez prowizji

Szczegóły oferty

Symbol oferty RYL-DS-9220
Powierzchnia 120,61 m²
Powierzchnia użytkowa [m2] 120,61 m²
Powierzchnia działki [m2] 322 m²
Liczba pokoi 4
Rodzaj domu skrajny szereg
Standard
Liczba pięter w budynku 1
Okna PCV
Instalacje nowe
Ukształtowanie działki płaska
Stan budynku do wykończenia

Opis nieruchomości

Polecamy Państwu do zakupu domy szeregowe w cichej i spokojnej lokalizacji.

Kozłów ul. Łabędzka przy Gliwicach 

Super lokalizacja z dala od miejskiego zgiełku a jednocześniej super dojazdem do Gliwic , strefy ekonomicznej , blisko drogi krajowej DK88

Inwestycja obejmuje budowę 7 domów w zabudowe szeregowej , każdy z domów posiada powierzchnie użytkową 120,61m2 - wielkość działek - domy środkowe 201m2 , lewy skrajny segment A 322m2, prawy skrajny segment G 313m2 ( z opcją dokupienia działki o pow.ok.1000m2 ) 

Każdy z domów wyposażony będzie w szambo 10m3. 

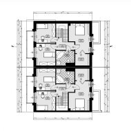
W zakładce zdjęcia załączono rzuty pomieszczeń , metraże pomieszczeń kształtuja sie w następujący sposób:

Parter:
- garaż - 14,83m2
- wiatrołap 4,61m2
- pom.gosp. 2,96m2
- komunikacja 3,78m2
- łazienka - 3,70m2
- salon - 28,83m2
- an.kuchenny - 5,96m2

Poddasze: 
- komunikacja - 7,35m2
- sypialnia- 15,10m2
- garderoba - 4,46m2
- łazienka 6,92m2
- pokój - 11,74m2
- pokój- 10,37m2

Stan wykończenia : stan deweloperski , maksymalna data zakończenia budowy 30.IX.2026r. 

Standard wykończenia: 

Ściany wykonane z cegły , tynki wewnetrzne gipsowe, okna PCV trzyszybowe, drzwi antywłamaniowe klasy C, wykonane kompletne instalacje wod-kan, elektryczne, centralne ogrzewanie z pompą cieplną typu split, ogrzewanie podłogowe ( w garażu też ). 

Prace na inwestycji zostały juz rozpoczęte , domy są murowane , prace przebiegają sprawnie , bez opóźnień.

Bez przeszkód można już teraz nabyć i skredytowac zakup nieruchomości, deweloper korzystan z otwartego rachunku powierniczego , środki wpłacane przez nabywców będa wypłacane dweloperowi etapami, zgodnie z postępem budowy, po kazdorazowej kontroli banku. 

Deweloper udziela 5-letniej gwarancji na wady fizyczne nieruchomości , na instalacje wod-kan oraz elektryczna obowiązuje 3-letnia gwarancja. 

Niniejsze ogłoszenia dotyczy Segmentu A skrajnego od ulicy Łabedzkiej w cenie 916 636 zł brutto 

W przypadku zainteresowania innymi domami prosimy o telefon , chętnie udzielimy informacji.

Kupujący nie płaci podatku PCC u notariusza oraz nie płaci prowizji w biurze nieruchomości !!



 

Kalkulatory

Kalkulator kredytowy

Wysokość raty

PLN
%

Kalkulator kosztów

Podatek od czynności cywilno-prawnych

Taksa notarialna
(opłata notarialna)

Wniosek o wpis do KW

VAT od prowizji
agencji nieruchomości

VAT od taksy notarialnej
(opłaty notarialnej)

Prowizja agencji nieruchomości

Wypisy aktu notarialnego

Razem

Uwaga: mogą wystąpić dodatkowe opłaty za założenie księgi wieczystej oraz ustanowienie hipoteki.

PLN
PLN
PLN
PLN
PLN
PLN
%
PLN

Właściciel

Proszę wprowadzić poprawne imię i nazwisko
Proszę wprowadzić poprawny numer telefonu
Proszę wprowadzić poprawny adres e-mail
Proszę zaznaczyć wymagane zgody
Rozwiąż równanie:
11 8
Niepoprawny wynik